bk53

каркасные дома и бани
+7 495 518-88-03
+7 812 940-33-22
почта для заказов 5188803@mail.ru

bk53

+7 495 518-88-03
+7 812 940-33-22
5188803@mail.ru

Одноэтажный каркасный дом 7,5х9

Одноэтажный каркасный дом 7,5х9

Каркасный одноэтажный дом 7,5х9.
Наружная отделка ТЕХНОНИКОЛЬ HAUBERK.
Цена по прайсу — 2125 000 рублей (имитация бруса).

Опции:
На 3% дешевле (стены 150 мм) — минус 64 000 рублей.
Внешняя отделка ТЕХНОНИКОЛЬ HAUBERK — 429 000 рублей.
Антисептированный пиломатериал — с 2026 года в базовой комплектации.
Входная дверь с терморазрывом — с 2026 года в базовой комплектации.

Другие расходы:
Бытовка 3х2 м — 24 000 рублей.
Свайный фундамент.

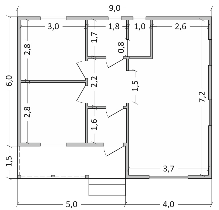
Планировка

Количество и расположение окон, дверей и перегородок не влияет на стоимость.
Была заказана следующая планировка:
Одноэтажный каркасный дом 7,5х9

Фотографии дома

Одноэтажный каркасный дом 7,5х9

Фото 1.

Одноэтажный каркасный дом 7,5х9

Фото 2.

Одноэтажный каркасный дом 7,5х9

Фото 3.

Одноэтажный каркасный дом 7,5х9

Фото 4.

Одноэтажный каркасный дом 7,5х9

Фото 5.

Одноэтажный каркасный дом 7,5х9

Фото 6.

Одноэтажный каркасный дом 7,5х9

Фото 7.

Одноэтажный каркасный дом 7,5х9

Фото 8.

Одноэтажный каркасный дом 7,5х9

Фото 9.

Одноэтажный каркасный дом 7,5х9

Фото 10.

Одноэтажный каркасный дом 7,5х9

Фото 11.

Одноэтажный каркасный дом 7,5х9

Фото 12.

Внутренняя отделка

Стены и потолки отделаны имитацией бруса.
Полы из шпунтованной доски.
Одноэтажный каркасный дом 7,5х9

Фото 1.

Одноэтажный каркасный дом 7,5х9

Фото 2.

Одноэтажный каркасный дом 7,5х9

Фото 3.

Одноэтажный каркасный дом 7,5х9

Фото 4.

Одноэтажный каркасный дом 7,5х9

Фото 5.

Одноэтажный каркасный дом 7,5х9

Фото 6.

Одноэтажный каркасный дом 7,5х9

Фото 7.

Одноэтажный каркасный дом 7,5х9

Фото 8.

Одноэтажный каркасный дом 7,5х9

Фото 9.

Одноэтажный каркасный дом 7,5х9

Фото 10.

Одноэтажный каркасный дом 7,5х9

Фото 11.

Одноэтажный каркасный дом 7,5х9

Фото 12.

Одноэтажный каркасный дом 7,5х9

Фото 13.

Одноэтажный каркасный дом 7,5х9

Фото 14.

Строительство дома

Построен в конце 2025 года в Ломоносовском районе, Ленинградская область.
Срок строительства 3 недели.

Как заказать дом

Для заказа дома напишите нам на почту 5188803@mail.ru или в группу Вконтакте.
Можно заказать дом без отделки и утепления, с террасой или без террасы. Планировку сделаем такую, какую вы закажете. Вход там, где вам удобнее, исходя из расположения на участке. Примыкание и внешний вид террасы сделаем таким, каким вы захотите. Посмотрите другие одноэтажные дома на нашем сайте.

Примеры одноэтажных домов

Комментарии

Обо всех изменениях на сайте вы узнаете из нашей группы Вконтакте - https://vk.com/bk53ru
Вступайте в группу, ставьте лайки, делайте репосты. Спасибо.

© 2006 — 2026  ИП Смирнов А. Б.