bk53

каркасные дома и бани
+7 495 518-88-03
+7 812 940-33-22
почта для заказов 5188803@mail.ru

bk53

+7 495 518-88-03
+7 812 940-33-22
5188803@mail.ru

Каркасный одноэтажный дом 6х9

Каркасный одноэтажный дом 6х9

Каркасный одноэтажный дом 6х9.
Наружная отделка имитация бруса.
Цена по прайсу — 1750 000 рублей.

Опции:
Антисептированный пиломатериал — с 2026 года в базовой комплектации.
Входная дверь с терморазрывом — с 2026 года в базовой комплектации.

Другие расходы:
Бытовка 3х2 м — 24 000 рублей.
Установка печи заказчика — 18 000 рублей.
Свайный фундамент.

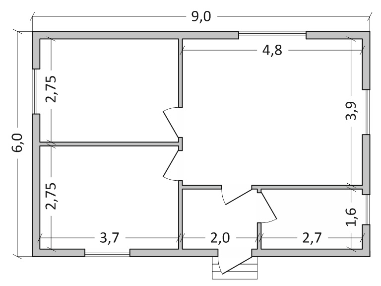
Планировка

Количество и расположение окон, дверей и перегородок не влияет на стоимость.
Была заказана следующая планировка:
Каркасный одноэтажный дом 6х9

Фотографии дома

Каркасный одноэтажный дом 6х9

Фото 1.
Каркасный одноэтажный дом 6х9

Фото 2.
Каркасный одноэтажный дом 6х9

Фото 3.
Каркасный одноэтажный дом 6х9

Фото 4.
Каркасный одноэтажный дом 6х9

Фото 5.
Каркасный одноэтажный дом 6х9

Фото 6.
Каркасный одноэтажный дом 6х9

Фото 7.
Каркасный одноэтажный дом 6х9

Фото 8.
Каркасный одноэтажный дом 6х9

Фото 9.
Каркасный одноэтажный дом 6х9

Фото 10.

Внутренняя отделка

Стены и потолки отделаны имитацией бруса.
Полы из шпунтованной доски 28 мм.
Каркасный одноэтажный дом 6х9

Фото 1.

Каркасный одноэтажный дом 6х9

Фото 2.

Каркасный одноэтажный дом 6х9

Фото 3.

Каркасный одноэтажный дом 6х9

Фото 4.

Каркасный одноэтажный дом 6х9

Фото 5.

Каркасный одноэтажный дом 6х9

Фото 6.

Каркасный одноэтажный дом 6х9

Фото 7.

Каркасный одноэтажный дом 6х9

Фото 8.

Каркасный одноэтажный дом 6х9

Фото 9.

Каркасный одноэтажный дом 6х9

Фото 10.

Каркасный одноэтажный дом 6х9

Фото 11.

Каркасный одноэтажный дом 6х9

Фото 12.

Строительство дома

Построен осенью 2025 года в Кольском районе, Мурманская область.
Срок строительства 2 недели.

Как заказать дом

Для заказа дома напишите нам на почту 5188803@mail.ru или в группу Вконтакте.
Планировку сделаем такую, какую вы закажете. Вход там, где вам удобнее, исходя из расположения на участке. Примыкание и внешний вид террасы сделаем таким, каким вы захотите. Можно заказать дом с наружной отделкой сайдингом, имитацией бруса или имитацией бревна. Посмотрите другие одноэтажные дома на нашем сайте.

Примеры одноэтажных домов

Комментарии

Обо всех изменениях на сайте вы узнаете из нашей группы Вконтакте - https://vk.com/bk53ru
Вступайте в группу, ставьте лайки, делайте репосты. Спасибо.

© 2006 — 2026  ИП Смирнов А. Б.