bk53

каркасные дома и бани
+7 495 518-88-03
+7 812 940-33-22
почта для заказов 5188803@mail.ru

bk53

+7 495 518-88-03
+7 812 940-33-22
5188803@mail.ru

Дом 8х11 с угловой террасой

Дом 8х11 с угловой террасой

Каркасный одноэтажный дом 8х11.
Наружная отделка имитация бруса.
Цена по прайсу — 2700 000 рублей.

Опции:
Без отделки и утепления — минус 1020 000 рублей.
Терраса 1,5х2 — 48 000 рублей.
Терраса 3х5 + 1,5х2 — 216 000 рублей.
Антисептированный пиломатериал — с 2026 года в базовой комплектации.
Входная дверь с терморазрывом — с 2026 года в базовой комплектации.

Другие расходы:
Бытовка 3х2 м — 24 000 рублей.
Свайный фундамент.

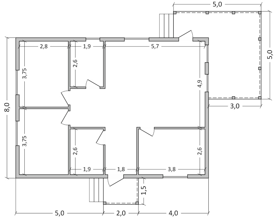
Планировка

Количество и расположение окон, дверей и перегородок не влияет на стоимость.
Была заказана следующая планировка:
Дом 8х11 с угловой террасой

Фотографии дома

Дом 8х11 с угловой террасой

Фото 1.

Дом 8х11 с угловой террасой

Фото 2.

Дом 8х11 с угловой террасой

Фото 3.

Дом 8х11 с угловой террасой

Фото 4.

Дом 8х11 с угловой террасой

Фото 5.

Дом 8х11 с угловой террасой

Фото 6.

Дом 8х11 с угловой террасой

Фото 7.

Дом 8х11 с угловой террасой

Фото 8.

Дом 8х11 с угловой террасой

Фото 9.

Дом 8х11 с угловой террасой

Фото 10.

Дом 8х11 с угловой террасой

Фото 11.

Дом 8х11 с угловой террасой

Фото 12.

Дом 8х11 с угловой террасой

Фото 13.

Дом 8х11 с угловой террасой

Фото 14.

Дом 8х11 с угловой террасой

Фото 15.

Дом 8х11 с угловой террасой

Фото 16.

Дом 8х11 с угловой террасой

Фото 17.

Дом 8х11 с угловой террасой

Фото 18.

Дом 8х11 с угловой террасой

Фото 19.

Дом 8х11 с угловой террасой

Фото 20.

Дом 8х11 с угловой террасой

Фото 21. Дом через полгода, весна 2026.

Дом 8х11 с угловой террасой

Фото 22.

Дом 8х11 с угловой террасой

Фото 23.

Дом 8х11 с угловой террасой

Фото 24.

Дом 8х11 с угловой террасой

Фото 25.

Дом 8х11 с угловой террасой

Фото 26.

Дом 8х11 с угловой террасой

Фото 27.

Дом 8х11 с угловой террасой

Фото 28.

Дом 8х11 с угловой террасой

Фото 29.

Дом 8х11 с угловой террасой

Фото 30.

Дом 8х11 с угловой террасой

Фото 31.

Внутренняя отделка

Дом был заказан без внутренней отделки и утепления (фото 1-3).
Через полгода была сделана внутренняя отделка (фото 4-31).
Стены и потолки отделаны имитацией бруса.
Полы из шпунтованной доски 36 мм.

Дом 8х11 с угловой террасой

Фото 1.

Дом 8х11 с угловой террасой

Фото 2.

Дом 8х11 с угловой террасой

Фото 3.

Дом 8х11 с угловой террасой

Фото 4.

Дом 8х11 с угловой террасой

Фото 5.

Дом 8х11 с угловой террасой

Фото 6.

Дом 8х11 с угловой террасой

Фото 7.

Дом 8х11 с угловой террасой

Фото 8.

Дом 8х11 с угловой террасой

Фото 9.

Дом 8х11 с угловой террасой

Фото 10.

Дом 8х11 с угловой террасой

Фото 11.

Дом 8х11 с угловой террасой

Фото 12.

Дом 8х11 с угловой террасой

Фото 13.

Дом 8х11 с угловой террасой

Фото 14.

Дом 8х11 с угловой террасой

Фото 15.

Дом 8х11 с угловой террасой

Фото 16.

Дом 8х11 с угловой террасой

Фото 17.

Дом 8х11 с угловой террасой

Фото 18.

Дом 8х11 с угловой террасой

Фото 19.

Дом 8х11 с угловой террасой

Фото 20.

Дом 8х11 с угловой террасой

Фото 21.

Дом 8х11 с угловой террасой

Фото 22.

Дом 8х11 с угловой террасой

Фото 23.

Дом 8х11 с угловой террасой

Фото 24.

Дом 8х11 с угловой террасой

Фото 25.

Дом 8х11 с угловой террасой

Фото 26.

Дом 8х11 с угловой террасой

Фото 27.

Дом 8х11 с угловой террасой

Фото 28.

Дом 8х11 с угловой террасой

Фото 29.

Дом 8х11 с угловой террасой

Фото 30.

Дом 8х11 с угловой террасой

Фото 31.

Строительство дома

Построен осенью 2025 года в Ломоносовском районе, Ленинградская область.
Срок строительства 2-3 недели.

Как заказать дом

Для заказа дома напишите нам на почту 5188803@mail.ru или в группу Вконтакте.
Планировку сделаем такую, какую вы закажете. Вход там, где вам удобнее, исходя из расположения на участке. Примыкание и внешний вид террасы сделаем таким, каким вы захотите. Можно заказать дом с наружной отделкой сайдингом, имитацией бруса или имитацией бревна. Посмотрите другие одноэтажные дома на нашем сайте.

Примеры одноэтажных домов разных размеров

Комментарии

Обо всех изменениях на сайте вы узнаете из нашей группы Вконтакте - https://vk.com/bk53ru
Вступайте в группу, ставьте лайки, делайте репосты. Спасибо.

© 2006 — 2026  ИП Смирнов А. Б.