bk53

каркасные дома и бани
+7 495 518-88-03
+7 812 940-33-22
почта для заказов 5188803@mail.ru

bk53

+7 495 518-88-03
+7 812 940-33-22
5188803@mail.ru

Одноэтажный дом 6х6 с террасой 1,5х3

Одноэтажный дом 6х6 с террасой 1,5х3

Каркасный одноэтажный дом 6х6.
Наружная отделка имитация бруса.
Цена по прайсу — 1225 000 рублей.

Опции:
Внутренняя отделка имитацией бруса — с 2024 года в базовой комплектации.
Терраса 1,5х3 — 64 000 рублей.

Другие расходы:
Бытовка 3х2 м — 24 000 рублей.
Фундамент.

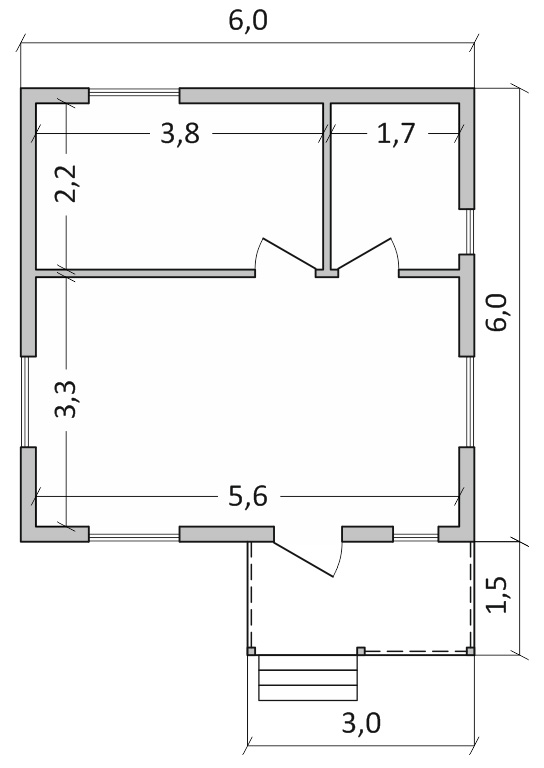
Планировка

Количество и расположение окон, дверей и перегородок не влияет на стоимость.
Была заказана следующая планировка:
Одноэтажный дом 6х6 с террасой 1,5х3

Фотографии дома

Одноэтажный дом 6х6 с террасой 1,5х3

Фото 1.
Одноэтажный дом 6х6 с террасой 1,5х3

Фото 2.
Одноэтажный дом 6х6 с террасой 1,5х3

Фото 3.
Одноэтажный дом 6х6 с террасой 1,5х3

Фото 4.
Одноэтажный дом 6х6 с террасой 1,5х3

Фото 5.
Одноэтажный дом 6х6 с террасой 1,5х3

Фото 6.
Одноэтажный дом 6х6 с террасой 1,5х3

Фото 7.
Одноэтажный дом 6х6 с террасой 1,5х3

Фото 8.
Одноэтажный дом 6х6 с террасой 1,5х3

Фото 9.

Внутренняя отделка

Стены и потолки отделаны имитацией бруса.
Полы из шпунтованной доски 28 мм.
Одноэтажный дом 6х6 с террасой 1,5х3

Фото 1.

Одноэтажный дом 6х6 с террасой 1,5х3

Фото 2.

Одноэтажный дом 6х6 с террасой 1,5х3

Фото 3.

Одноэтажный дом 6х6 с террасой 1,5х3

Фото 4.

Одноэтажный дом 6х6 с террасой 1,5х3

Фото 5.

Одноэтажный дом 6х6 с террасой 1,5х3

Фото 6.

Одноэтажный дом 6х6 с террасой 1,5х3

Фото 7.

Одноэтажный дом 6х6 с террасой 1,5х3

Фото 8.

Строительство дома

Построен летом 2025 года в Ковдорском районе, Мурманская область.
Срок строительства 2 недели.

Как заказать дом

Для заказа дома напишите нам на почту 5188803@mail.ru или в группу Вконтакте.
Планировку сделаем такую, какую вы закажете. Вход там, где вам удобнее, исходя из расположения на участке. Примыкание и внешний вид террасы сделаем таким, каким вы захотите. Можно заказать дом с наружной отделкой сайдингом, имитацией бруса или имитацией бревна. Посмотрите другие одноэтажные дома на нашем сайте.

Примеры одноэтажных домов с террасами

Комментарии

Обо всех изменениях на сайте вы узнаете из нашей группы Вконтакте - https://vk.com/bk53ru
Вступайте в группу, ставьте лайки, делайте репосты. Спасибо.

© 2006 — 2026  ИП Смирнов А. Б.