bk53

каркасные дома и бани
+7 495 518-88-03
+7 812 940-33-22
почта для заказов 5188803@mail.ru

bk53

+7 495 518-88-03
+7 812 940-33-22
5188803@mail.ru

Каркасный одноэтажный дом 6х8 с террасой

Каркасный одноэтажный дом 6х8 с террасой

Каркасный одноэтажный дом 6х8.
Наружная отделка имитация бруса.
Цена по прайсу — 1575 000 рублей.

Опции:
На 3% дешевле (стены 150 мм) — минус 47 000 рублей.
Внутренняя отделка имитацией бруса — с 2024 года в базовой комплектации.
Терраса 2,5х6 — 168 000 рублей.
Антисептированный пиломатериал — с 2026 года в базовой комплектации.
Входная дверь с терморазрывом — с 2026 года в базовой комплектации.

Другие расходы:
Бытовка 3х2 м — 24 000 рублей.
Свайный фундамент.

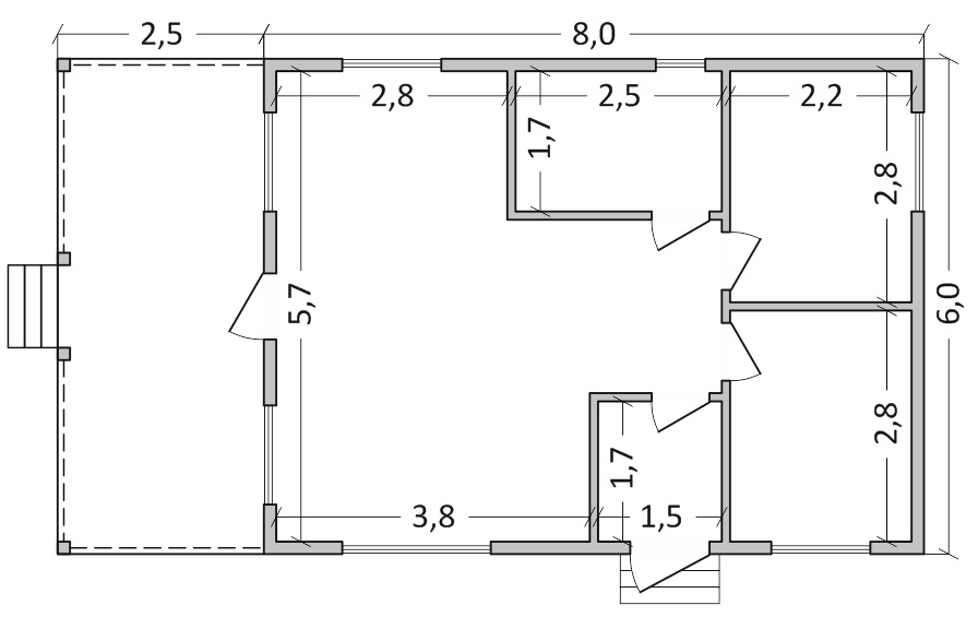
Планировка

Количество и расположение окон, дверей и перегородок не влияет на стоимость.
Была заказана следующая планировка:
Каркасный одноэтажный дом 6х8 с террасой

Фотографии дома

Каркасный одноэтажный дом 6х8 с террасой

Фото 1.
Каркасный одноэтажный дом 6х8 с террасой

Фото 2.
Каркасный одноэтажный дом 6х8 с террасой

Фото 3.
Каркасный одноэтажный дом 6х8 с террасой

Фото 4.
Каркасный одноэтажный дом 6х8 с террасой

Фото 5.
Каркасный одноэтажный дом 6х8 с террасой

Фото 6.
Каркасный одноэтажный дом 6х8 с террасой

Фото 7.
Каркасный одноэтажный дом 6х8 с террасой

Фото 8.
Каркасный одноэтажный дом 6х8 с террасой

Фото 9.
Каркасный одноэтажный дом 6х8 с террасой

Фото 10.
Каркасный одноэтажный дом 6х8 с террасой

Фото 11.
Каркасный одноэтажный дом 6х8 с террасой

Фото 12.
Каркасный одноэтажный дом 6х8 с террасой

Фото 13.
Каркасный одноэтажный дом 6х8 с террасой

Фото 14.

Внутренняя отделка

Стены и потолки отделаны имитацией бруса.
Полы из шпунтованной доски 28 мм.
Каркасный одноэтажный дом 6х8 с террасой

Фото 1.

Каркасный одноэтажный дом 6х8 с террасой

Фото 2.

Каркасный одноэтажный дом 6х8 с террасой

Фото 3.

Каркасный одноэтажный дом 6х8 с террасой

Фото 4.

Каркасный одноэтажный дом 6х8 с террасой

Фото 5.

Каркасный одноэтажный дом 6х8 с террасой

Фото 6.

Каркасный одноэтажный дом 6х8 с террасой

Фото 7.

Каркасный одноэтажный дом 6х8 с террасой

Фото 8.

Каркасный одноэтажный дом 6х8 с террасой

Фото 9.

Каркасный одноэтажный дом 6х8 с террасой

Фото 10.

Каркасный одноэтажный дом 6х8 с террасой

Фото 11.

Каркасный одноэтажный дом 6х8 с террасой

Фото 12.

Строительство дома

Построен осенью 2025 года в Дмитровском районе, Московская область.
Срок строительства 2-3 недели.

Каркасный одноэтажный дом 6х8 с террасой

Фото 1.

Каркасный одноэтажный дом 6х8 с террасой

Фото 2.

Каркасный одноэтажный дом 6х8 с террасой

Фото 3.

Каркасный одноэтажный дом 6х8 с террасой

Фото 4.

Как заказать дом

Для заказа дома напишите нам на почту 5188803@mail.ru или в группу Вконтакте.
Планировку сделаем такую, какую вы закажете. Вход там, где вам удобнее, исходя из расположения на участке. Примыкание и внешний вид террасы сделаем таким, каким вы захотите. Можно заказать дом с наружной отделкой сайдингом, имитацией бруса или имитацией бревна. Посмотрите другие одноэтажные дома на нашем сайте.

Примеры одноэтажных домов с террасами

Комментарии

Обо всех изменениях на сайте вы узнаете из нашей группы Вконтакте - https://vk.com/bk53ru
Вступайте в группу, ставьте лайки, делайте репосты. Спасибо.

© 2006 — 2026  ИП Смирнов А. Б.