bk53

каркасные дома и бани
+7 495 518-88-03
+7 812 940-33-22
почта для заказов 5188803@mail.ru

bk53

+7 495 518-88-03
+7 812 940-33-22
5188803@mail.ru

Дом 7х9 с террасами и вторым светом

Дом 7х9 с террасами и вторым светом

Каркасный одноэтажный дом 7х9.
Наружная отделка имитация бруса.
Цена по прайсу — 2000 000 рублей.

Опции:
Терраса 3х7 — 224 000 рублей.
Терраса 1,5х3 — 64 000 рублей.
Внутренняя отделка имитацией бруса — с 2024 года в базовой комплектации.
Обшивка каркаса плитами Белтермо — 95 000 рублей.
Антисептированный пиломатериал — с 2026 года в базовой комплектации.
Входная дверь с терморазрывом — с 2026 года в базовой комплектации.
Второй свет — 60 000 рублей.

Другие расходы:
Бытовка 3х2 м — 24 000 рублей.
Свайный фундамент.

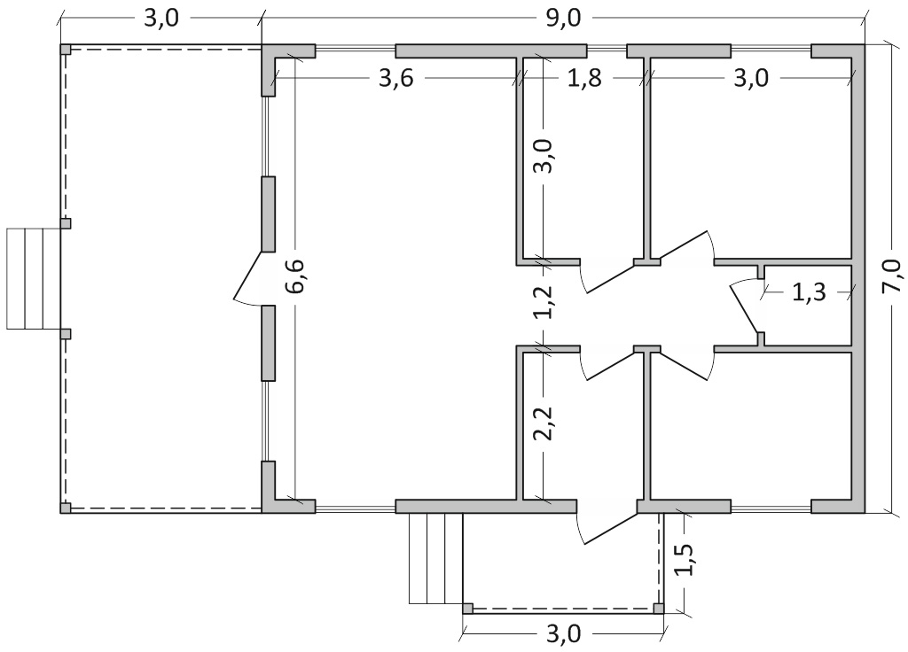
Планировка

Количество и расположение окон, дверей и перегородок не влияет на стоимость.
Была заказана следующая планировка:
Дом 7х9 с террасами и вторым светом

Фотографии дома

Дом 7х9 с террасами и вторым светом

Фото 1.
Дом 7х9 с террасами и вторым светом

Фото 2.
Дом 7х9 с террасами и вторым светом

Фото 3.
Дом 7х9 с террасами и вторым светом

Фото 4.
Дом 7х9 с террасами и вторым светом

Фото 5.
Дом 7х9 с террасами и вторым светом

Фото 6.
Дом 7х9 с террасами и вторым светом

Фото 7.
Дом 7х9 с террасами и вторым светом

Фото 8.
Дом 7х9 с террасами и вторым светом

Фото 9.
Дом 7х9 с террасами и вторым светом

Фото 10.
Дом 7х9 с террасами и вторым светом

Фото 11.
Дом 7х9 с террасами и вторым светом

Фото 12.
Дом 7х9 с террасами и вторым светом

Фото 13.
Дом 7х9 с террасами и вторым светом

Фото 14.
Дом 7х9 с террасами и вторым светом

Фото 15.
Дом 7х9 с террасами и вторым светом

Фото 16.
Дом 7х9 с террасами и вторым светом

Фото 17.
Дом 7х9 с террасами и вторым светом

Фото 18.
Дом 7х9 с террасами и вторым светом

Фото 19.
Дом 7х9 с террасами и вторым светом

Фото 20.
Дом 7х9 с террасами и вторым светом

Фото 21.
Дом 7х9 с террасами и вторым светом

Фото 22.
Дом 7х9 с террасами и вторым светом

Фото 23.

Внутренняя отделка

Стены и потолки отделаны имитацией бруса.
Полы из шпунтованной доски 28 мм.
Дом 7х9 с террасами и вторым светом

Фото 1.

Дом 7х9 с террасами и вторым светом

Фото 2.

Дом 7х9 с террасами и вторым светом

Фото 3.

Дом 7х9 с террасами и вторым светом

Фото 4.

Дом 7х9 с террасами и вторым светом

Фото 5.

Дом 7х9 с террасами и вторым светом

Фото 6.

Дом 7х9 с террасами и вторым светом

Фото 7.

Дом 7х9 с террасами и вторым светом

Фото 8.

Дом 7х9 с террасами и вторым светом

Фото 9.

Дом 7х9 с террасами и вторым светом

Фото 10.

Дом 7х9 с террасами и вторым светом

Фото 11.

Дом 7х9 с террасами и вторым светом

Фото 12.

Дом 7х9 с террасами и вторым светом

Фото 13.

Дом 7х9 с террасами и вторым светом

Фото 14.

Дом 7х9 с террасами и вторым светом

Фото 15.

Дом 7х9 с террасами и вторым светом

Фото 16.

Дом 7х9 с террасами и вторым светом

Фото 17.

Строительство дома

Построен осенью 2025 года в Кольском районе, Мурманская область.
Срок строительства 4 недели.

Как заказать дом

Для заказа дома напишите нам на почту 5188803@mail.ru или в группу Вконтакте.
Планировку сделаем такую, какую вы закажете. Вход там, где вам удобнее, исходя из расположения на участке. Примыкание и внешний вид террасы сделаем таким, каким вы захотите. Можно заказать дом с наружной отделкой сайдингом, имитацией бруса или имитацией бревна. Посмотрите другие одноэтажные дома на нашем сайте.

Примеры одноэтажных домов

Комментарии

Обо всех изменениях на сайте вы узнаете из нашей группы Вконтакте - https://vk.com/bk53ru
Вступайте в группу, ставьте лайки, делайте репосты. Спасибо.

© 2006 — 2026  ИП Смирнов А. Б.