bk53

каркасные дома и бани
+7 495 518-88-03
+7 812 940-33-22
почта для заказов 5188803@mail.ru

bk53

+7 495 518-88-03
+7 812 940-33-22
5188803@mail.ru

Каркасный одноэтажный дом 6х8

Каркасный одноэтажный дом 6х8

Каркасный одноэтажный дом 6х8.
Наружная отделка имитация бруса.
Цена по прайсу — 1575 000 рублей.

Опции:
Без отделки и утепления — минус 585 000 рублей.
Антисептированный пиломатериал — с 2026 года в базовой комплектации.
Входная дверь с терморазрывом — с 2026 года в базовой комплектации.

Другие расходы:
Бытовка 3х2 м — 24 000 рублей.
Свайный фундамент.

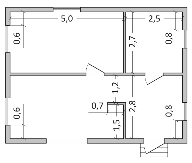
Планировка

Количество и расположение окон, дверей и перегородок не влияет на стоимость.
Была заказана следующая планировка:
Каркасный одноэтажный дом 6х8

Фотографии дома

Каркасный одноэтажный дом 6х8

Фото 1.
Каркасный одноэтажный дом 6х8

Фото 2.
Каркасный одноэтажный дом 6х8

Фото 3.
Каркасный одноэтажный дом 6х8

Фото 4.
Каркасный одноэтажный дом 6х8

Фото 5.
Каркасный одноэтажный дом 6х8

Фото 6.
Каркасный одноэтажный дом 6х8

Фото 7.
Каркасный одноэтажный дом 6х8

Фото 8.
Каркасный одноэтажный дом 6х8

Фото 9. Дом после покраски. Татьяна, большое спасибо за фотографии!
Каркасный одноэтажный дом 6х8

Фото 10.

Внутренняя отделка

Дом был заказан без внутренней отделки и утепления.
Каркасный одноэтажный дом 6х8

Фото 1.
Каркасный одноэтажный дом 6х8

Фото 2.
Каркасный одноэтажный дом 6х8

Фото 3.

Строительство дома

Построен летом 2025 года в Лужском районе, Ленинградская область.
Срок строительства 1-2 недели.

Как заказать дом

Для заказа дома напишите нам на почту 5188803@mail.ru или в группу Вконтакте.
Планировку сделаем такую, какую вы закажете. Вход там, где вам удобнее, исходя из расположения на участке. Примыкание и внешний вид террасы сделаем таким, каким вы захотите. Можно заказать дом с наружной отделкой сайдингом, имитацией бруса или имитацией бревна. Посмотрите другие одноэтажные дома на нашем сайте.

Примеры одноэтажных домов с террасами

Комментарии

Обо всех изменениях на сайте вы узнаете из нашей группы Вконтакте - https://vk.com/bk53ru
Вступайте в группу, ставьте лайки, делайте репосты. Спасибо.

© 2006 — 2026  ИП Смирнов А. Б.