bk53

каркасные дома и бани
+7 495 518-88-03
+7 812 940-33-22
почта для заказов 5188803@mail.ru

bk53

+7 495 518-88-03
+7 812 940-33-22
5188803@mail.ru

Каркасный дом 5х7 с антресолью +

Каркасный дом 5х7 с антресолью +

Каркасный одноэтажный дом 5х7 с антресолью.
Наружная отделка имитация бруса.
Цена по прайсу — 1440 000 рублей.
В прайсах нет домов с антресолью, надо взять среднее значение между одноэтажным домом 5х7 и домом 5х7 с мансардой.

Опции:
Внутренняя отделка имитацией бруса — с 2024 года в базовой комплектации.

Другие расходы:
Бытовка 3х2 м — 24 000 рублей.
Свайный фундамент.

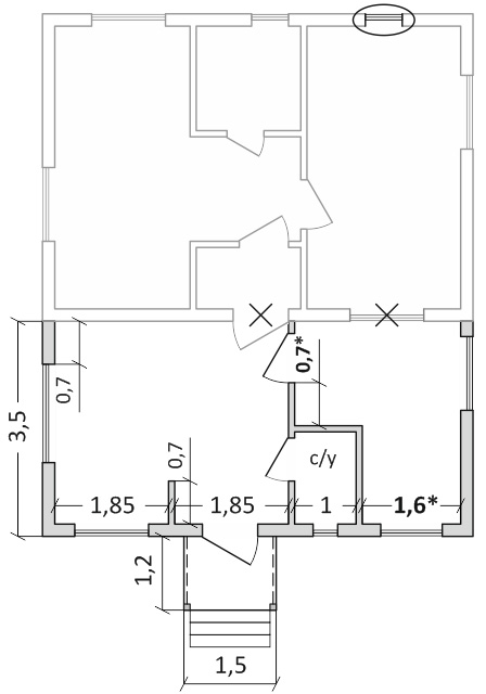
Планировка

Количество и расположение окон, дверей и перегородок не влияет на стоимость.
Была заказана следующая планировка:
Каркасный дом 5х7 с антресолью +

Фотографии дома

Каркасный дом 5х7 с антресолью +

Фото 1.

Каркасный дом 5х7 с антресолью +

Фото 2.

Каркасный дом 5х7 с антресолью +

Фото 3.

Каркасный дом 5х7 с антресолью +

Фото 4.

Каркасный дом 5х7 с антресолью +

Фото 5.

Каркасный дом 5х7 с антресолью +

Фото 6. Дом через несколько лет (фото заказчика). Александра, большое спасибо за фотографии!

Каркасный дом 5х7 с антресолью +

Фото 7.

Каркасный дом 5х7 с антресолью +

Фото 8.

Каркасный дом 5х7 с антресолью +

Фото 9.

Каркасный дом 5х7 с антресолью +

Фото 10.

Каркасный дом 5х7 с антресолью +

Фото 11.

Каркасный дом 5х7 с антресолью +

Фото 12. Через 5 лет после строительства дома была заказана пристройка к нему.

Каркасный дом 5х7 с антресолью +

Фото 13. Начало работ.

Каркасный дом 5х7 с антресолью +

Фото 14.

Каркасный дом 5х7 с антресолью +

Фото 15.

Каркасный дом 5х7 с антресолью +

Фото 16.

Каркасный дом 5х7 с антресолью +

Фото 17.

Каркасный дом 5х7 с антресолью +

Фото 18.

Каркасный дом 5х7 с антресолью +

Фото 19.

Каркасный дом 5х7 с антресолью +

Фото 20.

Каркасный дом 5х7 с антресолью +

Фото 21.

Каркасный дом 5х7 с антресолью +

Фото 22.

Каркасный дом 5х7 с антресолью +

Фото 23.

Каркасный дом 5х7 с антресолью +

Фото 24.

Каркасный дом 5х7 с антресолью +

Фото 25.

Каркасный дом 5х7 с антресолью +

Фото 26.

Каркасный дом 5х7 с антресолью +

Фото 27.

Планировка и внутренняя отделка пристройки

Стены и потолки отделаны имитацией бруса.
Полы из шпунтованной доски 28 мм.
Каркасный дом 5х7 с антресолью +

Вот такая планировка пристройки была заказана. Далее фото внутри пристройки.

Каркасный дом 5х7 с антресолью +

Фото 1.

Каркасный дом 5х7 с антресолью +

Фото 2.

Каркасный дом 5х7 с антресолью +

Фото 3.

Каркасный дом 5х7 с антресолью +

Фото 4.

Каркасный дом 5х7 с антресолью +

Фото 5.

Внутренняя отделка дома

Стены и потолки отделаны имитацией бруса.
Полы из шпунтованной доски 28 мм.
Каркасный дом 5х7 с антресолью +

Фото 1.

Каркасный дом 5х7 с антресолью +

Фото 2.

Каркасный дом 5х7 с антресолью +

Фото 3.

Каркасный дом 5х7 с антресолью +

Фото 4.

Каркасный дом 5х7 с антресолью +

Фото 5.

Каркасный дом 5х7 с антресолью +

Фото 6.

Каркасный дом 5х7 с антресолью +

Фото 7.

Каркасный дом 5х7 с антресолью +

Фото 8.

Строительство дома

Построен осенью 2020 года в Угличском районе, Ярославская область.
Срок строительства 2 недели.

Как заказать дом

Для заказа дома напишите нам на почту 5188803@mail.ru или в группу Вконтакте.
Можно заказать дом без отделки и утепления, с террасой или без террасы. Планировку сделаем такую, какую вы закажете. Вход там, где вам удобнее, исходя из расположения на участке. Примыкание и внешний вид террасы сделаем таким, каким вы захотите. Наружную отделку можно сделать сайдингом, имитацией бруса или имитацией бревна. Цены для разных размеров есть на сайте. Посмотрите другие одноэтажные дома на нашем сайте.

Примеры одноэтажных домов

Комментарии

Обо всех изменениях на сайте вы узнаете из нашей группы Вконтакте - https://vk.com/bk53ru
Вступайте в группу, ставьте лайки, делайте репосты. Спасибо.

© 2006 — 2025  ИП Смирнов А. Б.