
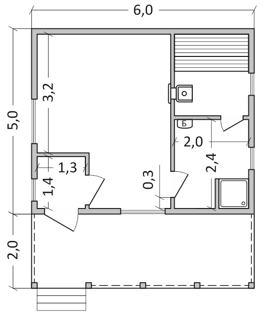
Каркасная баня 5х6.
Наружная отделка имитация бруса.
По прайсу цена бани 5х6 — 1170 000 рублей.
Опции:
На 4% дешевле (стены 150 мм, потолки 2,50 м) — минус 47 000 рублей.
Внутренняя отделка вагонкой — минус 20 000 рублей.
Антисептированный пиломатериал — с 2026 года в базовой комплектации.
Терраса 2х6 — 140 000 рублей.
Лестница на чердак — 25 000 рублей.
Другие расходы:
Бытовка 3х2 м — 24 000 рублей.
Свайный фундамент.